Control Room Furniture Design

From Sketches to Control Room Console Solutions

Control room projects represent significant infrastructure investments, requiring input from multiple teams to ensure a successful outcome. Among the most essential contributors are the end-users, operators who carry out mission-critical tasks in the control room daily. Their insights are crucial in guiding a control room furniture design that optimizes workflows and improves productivity, ensuring the ROI that organizations expect from such investments.

In the early stages of a control room retrofit, stakeholders often communicate initial ideas through rough sketches, doodles if you may, outlining critical needs and challenges identified by the operational team. These early concepts lay the foundation for a control room layout that addresses bottlenecks and enhances efficiency.

At Tresco, we understand that translating these initial ideas into a fully functional control room takes clear communication and a structured approach. Our role is to bridge the gap between operational input and design execution, helping to create command center furniture and industrial control room furniture tailored to your team’s needs. By working closely with your team, we ensure that your control room consoles support performance, safety, and efficiency.

In this post, we’ll cover the essential steps in transforming ideas into fully realized control room solutions and how Tresco facilitates smooth communication and collaboration throughout the control room project.

Undestanding your current situation |

Understanding Your Current Situation

Before any control room design work begins, we prioritize understanding your current control room layout, workflows, and challenges. Our team collaborates with yours to identify pain points and opportunities for improvement, ensuring every design decision is rooted in your specific operational needs.

Project Initiation Cadende Timelines Requirements |

Project Initiation: Cadence, Timelines & Requirements

Every successful control room project starts with a clear plan. We establish timelines and requirements, covering process needs and ergonomic standards, so that we’re aligned from the outset. Our project cadence keeps communication flowing, and we work around scheduled shutdowns for seamless installation. We also adjust control room furniture specifications to meet budgetary requirements where needed.

Tresco drawings equipment and layout |

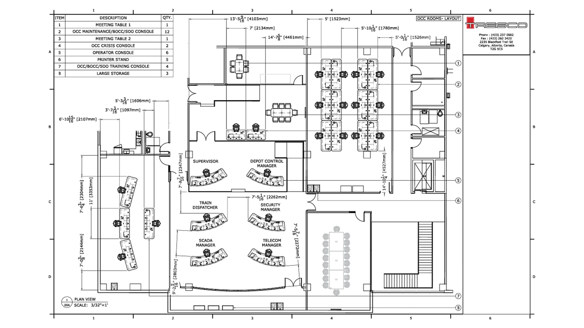
From Doodle to Control Room Layout

The journey begins with your sketches and initial concepts. Using these inputs, we develop the control room layout to ensure operator workflows are seamless and communications are efficient. Every aspect of the control room layout, from the integration of control room consoles and command center furniture to ergonomic elements designed to support operator focus and productivity.

Aligning with your operational processes, we create a design that fosters collaboration and productivity. All details are considered, from existing cable and duct routing to common traffic paths, ensuring that every inch of your control room is optimized for peak performance.

Tresco drawings equipment and layout 3 |

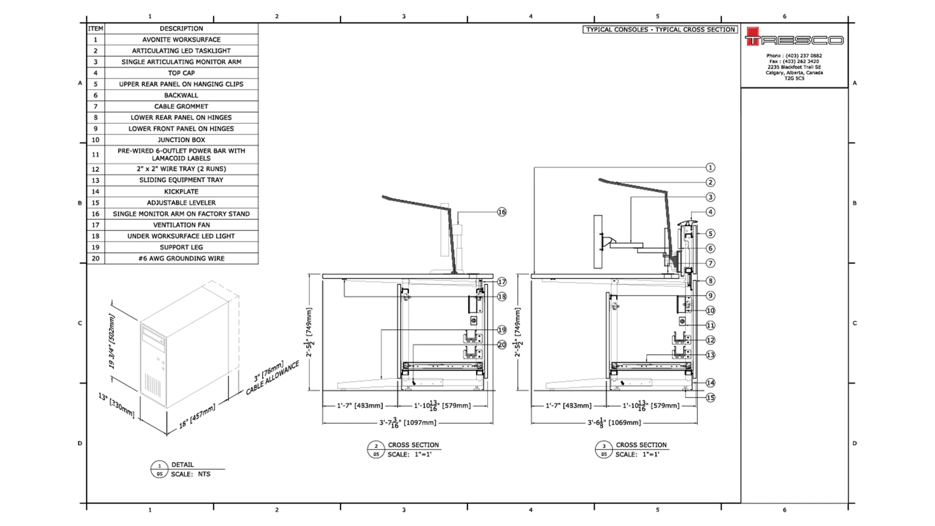
From Control Room Layout to Console Layout

Next, we will define the features, and accessories needed to address operational bottlenecks and enhance workflows. When discussing console layout, we are referring to the arrangement of all these accessories in the desktop or worksurface, essentially, where will all be placed.

These details are crucial to your success; small missteps, such as placing essential equipment outside the operator’s reach envelope, can disrupt processes and hinder productivity. Our detailed approach ensures that all features and tools are selected strategically and positioned to support smooth and uninterrupted operations.

From doodle to control room console design 2 |

Renderings and Previsualizations

To bring the design to life, we create detailed renderings, and previsualizations of the consoles and furniture in its intended control room layout matching your existing space. These visuals allow all stakeholders to see how the control room will function, ensuring alignment between teams and simplifying approvals. This step bridges the gap between concept and reality, making the transition between project phases smooth and efficient.

From doodle to control room console design 3 |

Review & Approval

Collaboration continues as we move into the review process. We involve your team to gather feedback and confirm that the design meets all requirements. Your approval is key to ensuring that no detail in the control room solution is overlooked before moving forward.

Some of the main elements we check are equipment fit, size and layout, monitor sizing and fit, cable routing and alignment with your existing outlets, document storage, proper sit-stand functionality without obstructions and more.

From doodle to control room console design |

Changes & Adjustments

We understand that no control room project is static, and adjustments may be necessary. Whether it’s refining the control desk layout, adjusting ergonomic features, or adapting to new technology, we remain flexible to ensure the final product aligns with your needs.

From doodle to control room console design 1 |

Production Ready Designs

Once the design is finalized and approved, we transition smoothly to production. Our manufacturing process is designed to turn concepts into functional control room furniture and control room consoles that are ready for installation in a matter of weeks.

At Tresco, we take pride in turning your ideas into reality. From initial sketches to final installation, our focus on collaboration, flexibility, and innovation ensures that your control room solutions enhance productivity and support your team’s best performance.

from doodle to control room furniture design full image |

DROP IN YOUR DOODLE

And let Tresco take care of the rest

Industry Solutions

Want to see projects from your industry?

Need help with an existing project?